Single Property
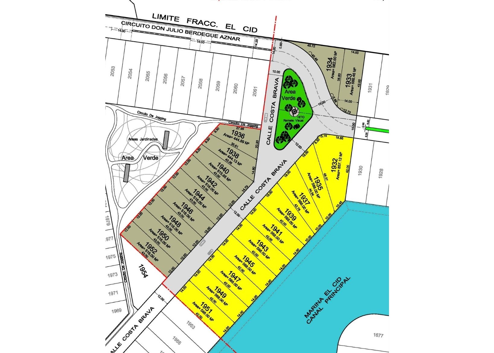
1932 Reino de Murcia
																			
							Lote, El Cid, Mazatlán, Sinaloa							
											$381,418 USD
					
				 $381,418
										USD
									857.12 m²
										De Terreno
									Vista Marina
									DESCRIPCIÓN
							Este amplio y espacioso lote de 857.12 m², está ubicado frente al canal Principal en Marina El Cid, lo cual es sinónimo de calidad de vida, exclusividad, seguridad y plusvalía garantizada. Cuenta con 29 metros frente a la calle, 10.45 metros frente a la Marina y 48.37 metros de largo, con la opción de tener su propio muelle.
							
						CARACTERÍSTICAS
							- Fraccionamiento privado
- Seguridad 24 horas
Contáctenos
						669.916.4141
							MEX 01 800 841 3369
						
				UBICACIÓN:
				
									
					El Cid, Mazatlán, Sinaloa					
					
			 
 
					 
										 
										 
										 
										 
										 
								